< back
info
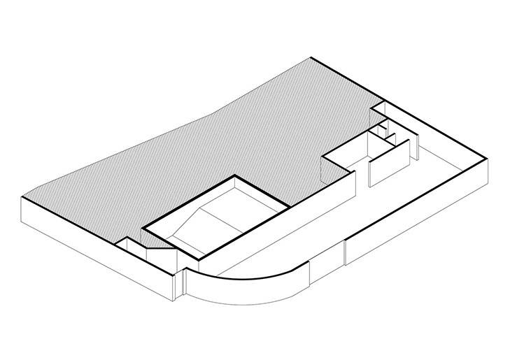
POOL PAVILION
Location
Marco de Canaveses
Author
António Cruz Lopes
Photo
José Campos Photographer
Paulo dos Sousa
Published
+ Archdaily
+ Archello
+ Espaço Arquitectura