< back
info
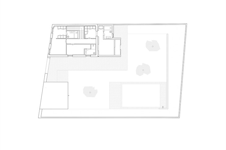
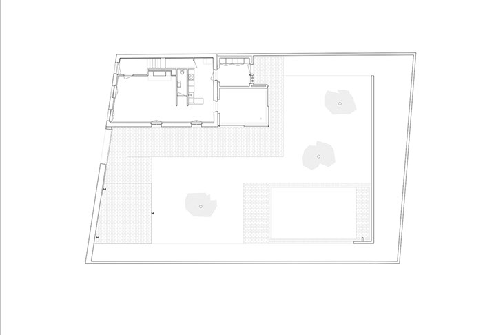
CONDE
Location
Vila Nova de Gaia
Author
António Cruz Lopes