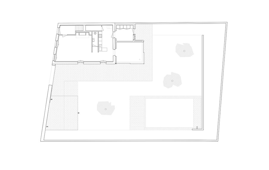
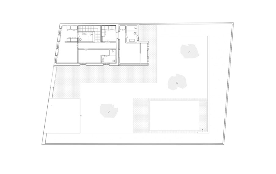
CONDE

Location

Vila Nova de Gaia

 

Author

António Cruz Lopes

< back

info

PT